Poniedziałek, 15 grudnia 2025 r. 
REKLAMA

Plan na slipowanie w Szczecinie dla rekreacji, ale też ratownictwa i bezpieczeństwa

Data publikacji: 05 kwietnia 2025 r. 09:06
Ostatnia aktualizacja: 06 kwietnia 2025 r. 14:27
Plan na slipowanie w Szczecinie dla rekreacji, ale też ratownictwa i bezpieczeństwa
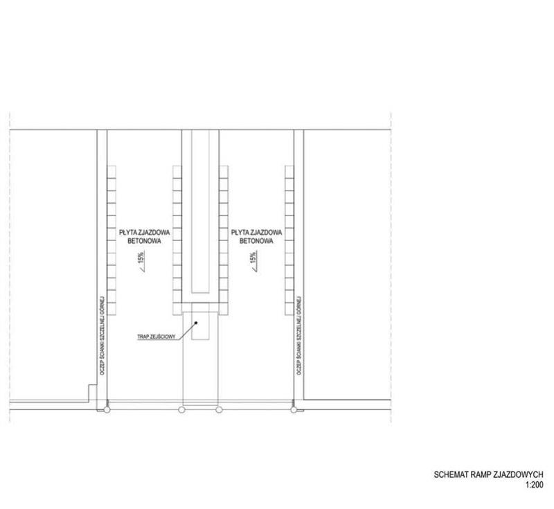
Priorytetowy do realizacji jest slip po prawobrzeżnej stronie Mostu Cłowego – adresowany przede wszystkim dla służb wodnych. Jest planowany jako podwójny – z dwoma równoległymi betonowymi płytami zjazdowymi, umożliwiający wodowanie oraz bezpieczne wyciąganie na brzeg także większych i cięższych jednostek pływających. Wizualizacja UM Szczecin  

To dobra wiadomość dla szczecińskich motorowodniaków. Blisko 3,7 mln złotych w tegorocznym budżecie miasta zostało zarezerwowanych na przygotowanie nowych slipów do wodowania oraz wyciągania na brzeg niewielkich jednostek pływających. Priorytetowa jest realizacja przy Moście Cłowym, wskazywana głównie przez wodne służby. Natomiast lokalizacje pozostałych mogą podpowiadać sami szczecinianie.

REKLAMA

Szczecińskie Wodne Ochotnicze Pogotowie Ratunkowe dysponuje 11 jednostkami pływającymi. Cięższe z łodzi slipuje albo w Szczecińskim Centrum Żeglarskim, albo w Bazie Oznakowania Nawigacyjnego, dzięki uprzejmości Urzędu Morskiego. Slip przy bazie, czyli przy ul. Heyki, wykorzystuje dla wodowania i wyciągania na brzeg głównie lżejszych jednostek. Użyczając go również innym służbom, jak np. referatowi wodnemu policji, a także - za symboliczną opłatą - wszystkim innym szczecińskim motorowodniakom.

- To urządzony własnymi siłami spadek z płyt drogowych, który mamy w bieżącym utrzymaniu i konserwacji. Z konieczności i dla bezpieczeństwa zamknięty szlabanem. Jaki udostępniamy wszystkim, którzy chcieliby

...
Zawartość dostępna dla Czytelników eKuriera
Pozostało jeszcze 77% treści.

Pełna treść artykułu dostępna w
eKurierze
z dnia 04-04-2025

 

Arleta Nalewajko
REKLAMA

Komentarze

Szczecinianin
2025-04-06 12:16:14
Slip przy Hayki zrobił i sfinansował jeden z motorowodniaków, nie miasto nie WOPR. Czy opłaty są symboliczne? Powinny być slipy bezpłatne, bezpieczne w kilku lokalizacjach, w tak dużym mieście otoczonym wodą.
Aby odpowiedzieć na komentarz, musisz być zalogowany.
Odczytaj
2025-04-05 13:13:03
@podatnik:Odczytaj cały artykuł to ma być głównie dla różnych służb a przy okazji mogą skorzystać inni.
Aby odpowiedzieć na komentarz, musisz być zalogowany.
Niech
2025-04-05 13:12:05
@podatnik :niech kierowcy sami sobie wybudują parkingi dla swoich autek i parkingowce dlaczego mieszkańcy mają ponosić koszty parkowania prywatnych samochodów ?
Aby odpowiedzieć na komentarz, musisz być zalogowany.
Podatnik
2025-04-05 12:05:13
Niech motorowodniacy sami dla siebie i za własne pieniądze wybudują sobie "slipy". Dlaczego mieszkańcy mają ponosić koszta budowy infrastruktury dla garstki właścicieli sprzętu pływającego ?
Aby odpowiedzieć na komentarz, musisz być zalogowany.
Trawnik
2025-04-05 09:34:28
@Marcin;trawnik im wystarczy tak jak w całym mieście.
Aby odpowiedzieć na komentarz, musisz być zalogowany.
Marcin
2025-04-05 09:26:35
Super pomysł. Nie widzę na zdjęciu parkingów dla samochodów z przyczepkami. Mam nadzieję że Pan projektant o tym pomyśli
Aby odpowiedzieć na komentarz, musisz być zalogowany.
Tylko zalogowani użytkownicy mają możliwość komentowania
Zaloguj się Zarejestruj
REKLAMA
REKLAMA